
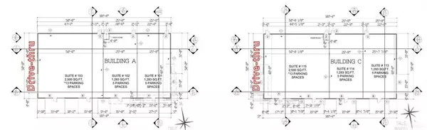
1,283 SqFt
1,283 SqFt
Key Details
Property Type Commercial
Sub Type Commercial
Listing Status Active
Purchase Type For Rent
Square Footage 1,283 sqft
Subdivision Bel-Air Estates
MLS Listing ID 464180
HOA Y/N No
Year Built 2025
Annual Tax Amount $12,019
Tax Year 2025
Lot Size 2.627 Acres
Acres 2.6267
Property Sub-Type Commercial
Source Greater McAllen
Property Description
Location
State TX
County Hidalgo
Exterior
Garage Spaces 118.0
View Y/N No
Total Parking Spaces 118
Garage Yes
Building
Faces Head north on N Expressway 281/N Frontage Rd, turn right. Continue onto E Mile 17 1/2 North Rd Turn right onto E Mile 17 1/2 Rd/Russell Rd Turn right onto Bus. 281/N Business Hwy 281/N Closner Blvd Turn left, Turn right, the Destination will be on the left.
Story 1
New Construction No
Others
Tax ID B214000000000100

"My job is to find and attract mastery-based agents to the office, protect the culture, and make sure everyone is happy! "






